- Accueil
- Vente
- Yvelines
- Velizy villacoublay
- 3p 65m2, 2014, 2 ch, calme, 1 parking.
Référence : 471-25
Calculette
Partager
3p 65m2, 2014, 2 ch, calme, 1 parking.
Description de l'offre
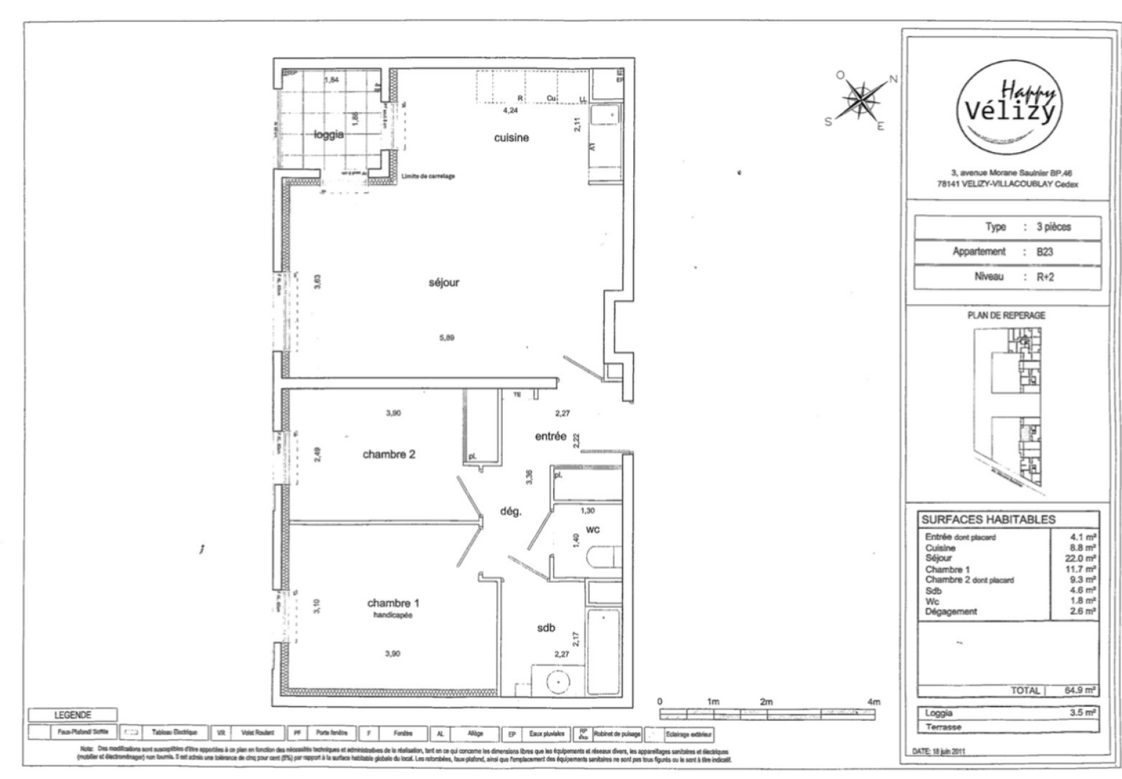
Quartier récent de Vélizy-Villacoublay, au sein d’une résidence de 2014 de standing à l’architecture contemporaine qui bénéficie d’une bonne isolation thermique, classé en C, vous serez séduit par ce 3p en excellent état de 65m2 ! Situé au 2ème étage sur 6, il est composé ; d’une entrée avec placard,1 pièce de vie de 30m2, salon de 22m2 et cuisine US de 8m2. 1 grand WC avec placard, 1 spacieuse SDB, 2 chambres (11m2 et 9m2 environ). Vous aurez une loggia ouverte de 4m2 environ qui vous permettra de déjeuner en extérieur ! Vous bénéficierez d’une vue sur un espace intérieur végétalisé. Aucun bruit de circulation. Pour votre confort, ce bien est équipé d'une cave et d'une place de parking en sous-sol. Ascenseur direct vers la cave et le parking. Double vitrage dans toute les pièces. Chauffage collectif. Charges mensuelles environ 190€ et 1048€ de foncier. Ses atouts : Son état, vous n’aurez qu’à vous y installer…Confort de vie, toutes les commodités sont sur place, écoles, commerces et transports (TRAM T6, Viroflay et ses différentes gares en 10 minutes), nombreux Bus. Etablissements scolaires. Accès faciles sans les nuisances sonores pour le tunnel vers Nanterre, le plateau de Saclay, la 118, et la 86… Pour les sportifs, la forêt est également à 5 minutes ainsi que plusieurs salles de sport. Je vous invite à le visiter du mardi au samedi de 10h00 à 17h00 sur Rendez-vous. Les honoraires de 2.7%TTC sont à la charge des acquéreurs inclus dans le prix affiché. Agence Sophie Leconte Immobilier.06.60.74.88.05.
Descriptif du bien
- Code postal : 78140
- Surface habitable (m²) : 65 m²
- Surface loi Carrez (m²) : 65 m²
- Nombre de chambre(s) : 2
- Nombre de pièces : 3
- Etage : 2
- Ascenseur : OUI
- Vue : URBAINE
- Nb de salle de bains : 1
- Cuisine : AMERICAINE
- Type de cuisine : SEMI-EQUIPEE
- Mode de chauffage : Gaz
- Type de chauffage : Radiateur
- Format de chauffage : Collectif
- Interphone : OUI
- Balcon : OUI
- Cave : OUI
- Surface cave (m²) : 4
- Exposition : SUD-EST
- Année de construction : 2014
- Quartier : Vélizy Est
- Copropriété : OUI
- nombre de lots : 160
- Quote Part annuelle des charges : 2 280 €
- plan de sauvegarde : NON
- statut du syndic : pas de procédure en cours
- Prix de vente honoraires TTC inclus : 334 000 €
- Prix de vente honoraires TTC exclus : 325 000 €
- Honoraires TTC à la charge acquéreur : 2,77 %
- Charges : 190 €
- Taxe foncière annuelle : 1 048 €
La ville de Vélizy-Villacoublay (78140)
Ce bien vous intéresse ?
Partager l'offre
Nous Contacter
Afficher le téléphone 06 60 74 88 05Les informations recueillies sur ce formulaire sont enregistrées dans un fichier informatisé par La Boite Immo agissant comme Sous-traitant du traitement pour la gestion de la clientèle/prospects de l'Agence / du Réseau qui reste Responsable du Traitement de vos Données personnelles.
La base légale du traitement repose sur l'intérêt légitime de l'Agence / du Réseau.
Elles sont conservées jusqu'à demande de suppression et sont destinées à l'Agence / au Réseau.
Conformément à la loi « informatique et libertés », vous disposez des droits d’accès, de rectification, d’effacement, d’opposition, de limitation et de portabilité de vos données. Vous pouvez retirer votre consentement à tout moment en contactant directement l’Agence / Le Réseau.
Consultez le site https://cnil.fr/fr pour plus d’informations sur vos droits.
Si vous estimez, après avoir contacté l'Agence / le Réseau, que vos droits « Informatique et Libertés » ne sont pas respectés, vous pouvez adresser une réclamation à la CNIL.
Nous vous informons de l’existence de la liste d'opposition au démarchage téléphonique « Bloctel », sur laquelle vous pouvez vous inscrire ici : https://www.bloctel.gouv.fr
Dans le cadre de la protection des Données personnelles, nous vous invitons à ne pas inscrire de Données sensibles dans le champ de saisie libre.
Ce site est protégé par reCAPTCHA, les Politiques de Confidentialité et les Conditions d'Utilisation de Google s'appliquent.
